分为平面剪力墙和圆柱剪力墙。平面剪力墙用于钢筋混凝土框架结构、上升板结构和无梁楼板系统。为了增加结构的刚度、强度和抗倒塌能力,钢筋混凝土剪力墙可现浇或在某些部位预制。现浇剪力墙与周围梁柱同时浇注,整体性好。圆柱剪力墙用于高层建筑、高耸结构和悬空结构。四周有电梯间、楼梯间、设备间和辅助间的隔墙。圆柱墙均为现浇钢筋混凝土墙。强度高于平面剪力墙,可承受较大的水平荷载。
墙体按受力特性可分为承重墙和剪力墙。前者主要承受竖向荷载,如砌石墙;后者主要承受水平载荷。在抗震设防区,水平荷载主要由水平地震作用产生,因此剪力墙有时也称为抗震墙。
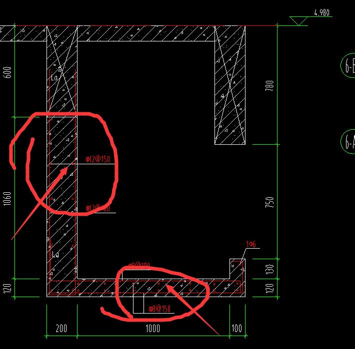
在混凝土墙上开洞安装门的方法?
开孔后,当开孔两侧墙体长度与剪力墙一致时,应按边构件布置配筋。当墙体高厚比小于3时,应按框架柱要求布置钢筋,并满足相应的抗震等级轴线。压力比限制。

当底部(一楼)洞口数量较多时,洞口两侧虽然满足剪力墙墩的要求,但不应低于上层刚度的80%(个人意见),否则,根据薄弱楼板的要求,加强结构,如加厚剪力墙、增加加固等措施。
当底部(一楼)洞口数量较多,且洞口两侧墙墩均满足立柱条件(短墩墙)时,短墩墙所占倾覆力矩的百分比应为进行检查和计算。具体数值规格未指定。根据百分比确定属于框架支撑结构还是局部框架支撑结构。由于开口和框架支撑结构的不同属性,它们不计入框架支撑系统。建议局部加厚墙体或增加框架柱。梁是按框架支撑结构的要求制作的,不应改变结构体系的性质。
在实际设计中尽量避免此类问题。处理问题的方法主要是加强结构,不改变构件的力学性能。
剪力墙开孔由谁批准?
高层地下室剪力墙可以开孔,但必须防水。剪力墙又称抗风墙、抗震墙或结构墙。房屋或结构中主要承受风荷载或地震引起的水平荷载和垂直荷载(重力)的墙体,以防止结构剪力(shear)损坏。分为平面剪力墙和圆柱剪力墙。平面剪力墙用于钢筋混凝土框架结构、上升板结构和无梁楼板系统。为了增加结构的刚度、强度和抗倒塌能力,钢筋混凝土剪力墙可现浇或在某些部位预制。现浇剪力墙与周围梁柱同时浇注,整体性好。圆柱剪力墙用于高层建筑、高耸结构和悬空结构。四周有电梯间、楼梯间、设备间和辅助间的隔墙。圆柱墙均为现浇钢筋混凝土墙。强度高于平面剪力墙,可承受较大的水平荷载。